发帖
微信
濠滨站务联系
客户端
扫码下载
濠河神聊 关注南通 静海杂谈 南通车市
美食天地 家居装潢 教育培训 相亲交友 旅游天下 濠滨房产 健康医疗 母婴亲子 金融理财 通城摄影
跳蚤 租房 濠滨通信 人才 租车 政府访谈

NTTV『百变家装秀』优秀作品案例——经典黑白灰 简单纯粹的美

发表于:2021-2-22 14:07 11615
& Q+ W7 @9 B* Z! F, J# G
1 b' c8 M( ]" f! @; U

NTTV『百变家装秀』优秀作品案例


5 b9 D8 B$ i$ D: Z2 I2 x. M
经典黑白灰  简单纯粹的美

5 P7 @6 e$ W! u, H, v

每一个家都独一无二,笔墨起落的线条勾画都充满爱意。

    从整体配色上看,本案是较为纯粹经典的黑白灰,给人的感觉简单干净,凸显家的气质感。
    因黑白灰色调看上去会比较冷,设计师在软装和配饰选择上比较用心,通过亮色点缀,增加新居的温馨感。
    通过大面积灰调护墙板的使用,让空间变得统一、规整,镶嵌在护墙板上的金属线条,让新居自带轻奢范。

9 Q6 g1 ~" v1 E' b# |5 E; Z4 }/ f+ k& ]- j5 Z6 y

) m5 r+ Y! _1 N/ C8 l
) R& r% e' f1 C; h- d$ n

+ d' X( y* i$ ?' s' J
设计师葛军和业主合影留念
" L* _, H2 J4 ~# T, \  W
515A0095.JPG
, I% N! ~  H/ K; j  G

) z# F1 i6 G- n( o/ _
6 b. {0 K% F3 W  k
( p' F  Z8 L- y; B
640.webp.jpg
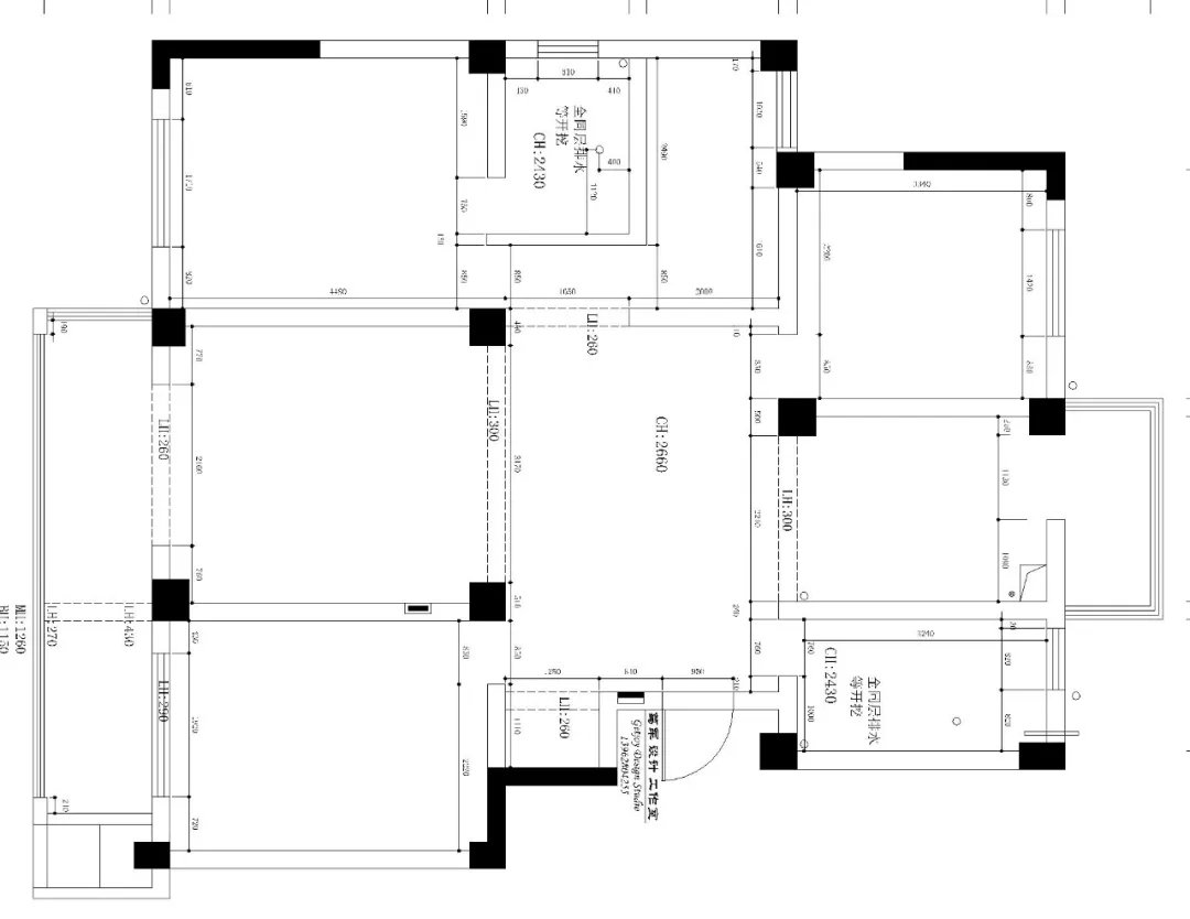
原始结构图

7 M5 d2 r% h; X* b; Y/ w
640.webp (1).jpg
平面布局图
" X5 h! P% }5 m1 s+ w5 {

% ]: m* U% b% \# \& R

# j7 f6 ~% C' m* p
515A0035.jpg 515A0039.jpg 515A0053.jpg
515A0041.jpg 515A0051.jpg 515A0057.jpg
515A0026.jpg 515A0031.jpg 515A0034.jpg
515A0014.jpg 515A0018.jpg 515A0021.jpg 515A0066.jpg
515A0060.jpg 515A0069.jpg
515A0074.JPG 515A0075.JPG 515A0072.JPG

9 B3 d- x  q& p" \- n  g% g* s) U: m6 k7 n' r& h
+ E; B1 e0 H# n3 A( _+ i
/ n4 J  G, j" ]4 e0 G8 E1 \' ?" R

4 b: h* E4 j/ A# l9 ~
更多案例咨询QQ:1206633532
装修预约:400-0513-600
—————————————————
喜欢就点击右上角分享到朋友圈吧~~
喜欢就点击标题下方【南通盛典瑞家装饰】关注我们吧~~~
或者添加客服微信,24小时在线,欢迎随时开聊!
12.jpg * B3 W  W/ y0 _2 H. }' ]( h
微信图片编辑_20210115105701.jpg
- @) R6 {: _. l
* k( v! Y; X  ^$ w* p( L
南通0
收藏
送赞
分享
分享到:  分享到QQ空间一键复制链接地址

发表回复

返回顶部
反馈举报